top of page
VIA VIGLIANI
(MI)
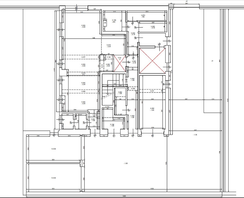
RECUPERO SEMINTERRATO AD USO ABITATIVO

Recupero seminterrato ad uso abitativo in stabile milanese, con frazionamento di locali cantine ed autorimessa, in 3 appartamenti di diverse metrature.

​

  • Studi di fattibilità

  • Rilievi strumentali

  • Progetti

STUDIO ARCHITETTURA

GIAMMINOLA

Tel: +39 02 36683209

Email: studiogiamminola@gmail.com

via Giuseppe Revere, 10

20123 - Milano

Credits: Arch. Matteo Giamminola

CONTACT US:

I tuoi dati sono stati inviati con successo!

bottom of page